SYSTÉM ZŤK PRE UPEVŇOVANIE KOĽAJNÍC
VŠEOBECNÉ VLASTNOSTI

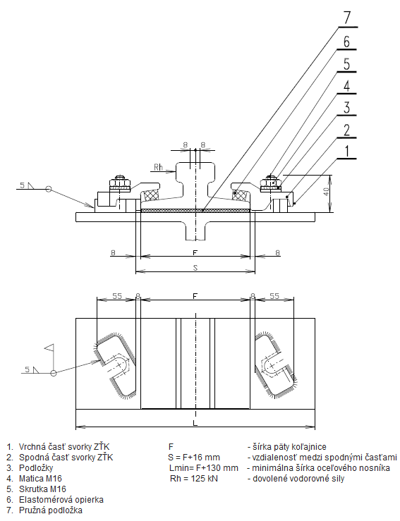
DVOJDIELNA SVORKA
SVORKY ZŤK typ 1116/15-H- vyššia spodná časť pre použitie s pružnou podložkou
1116/15-L- nižšia spodná čast pre tuhé uloženie bez pružnej podložky
Svorku ZŤK je možné použiť na upevnenie všetkých najčastejšie používaných typov žeriavových aj železničných koľajníc ako napríklad všetky koľajnice rady A, SP, S,JKL, MRS a ďalšie.

PRUŽNÁ PODLOŽKA
Jej hrúbka je 7mm a jej šírka je o 5mm užšia ako päta koľajnice. Podložka je vyrobená na báze syntetických elastomérov. V tele podložky je oceľový kord, ktorý bráni roztláčaniu podložky a jej ohybu v priečnom smere. Je odolná voči opotrebovaniu trením, napätím v ťahu a tlaku, a tiež voči starnutiu zapríčinenému UV žiarením. Pružná podložka umožňuje kontrolovanú torziu koľajnice spôsobenú priehybom mosta žeriava. Výrazne sa tak predlžuje životnosť koľajnice a kolies žeriava pri súčasnom znížení hluku.
VÝHODY ULOŽENIA KOĽAJNÍC - SYSTÉM ZŤK
- Smerová rektifikácia koľajnice v rozsahu 16mm počas montáže i po nej.
- Vyrovnanie výrobných nepresností šírky a hrúbky päty koľajnice.
- Namáhanie koľajnice zaťažením sa rovnomerne rozkladá na väčšiu dĺžku koľajnice.
- Pružné uloženie koľajnice podstatne znižuje vibrácie konštrukcie a hladinu hluku, čím sa zvyšuje životnosť celej žeriavovej dráhy.
- Pružné uloženie umožňuje tiež kontrolovanú torziu koľajnice okolo svojej osi spôsobenú priehybom mosta žeriava, dramaticky tak zvyšuje životnosť koľajnice a kolies žeriava.
- Nízka konštrukčná výška umožňuje svorku použiť aj pri žeriavoch s vodiacimi kladkami.
- Svorky sa voči sebe správajú samosvorne, čím je odstránené rázové zaťaženie spojovacej skrutky a jej povoľovanie počas prevádzky.
-
Elastomerová opierka - zamedzuje rozídeniu koľajnice pri jej prasknutí.
- zaisťuje potrebné predpätie päty koľajnice pri použití pružnej podložky.
- zamedzuje rázovému namáhaniu spojovacích skrutiek na ťah. - Jednoduchá údržba žeriavovej dráhy, rýchle a lacné smerové rovnanie a výmena koľajníc.
VÝHODY ULOŽENIA ZŤK OPROTI PODOBNÝM SYSTÉMOM
- Vrchná časť je opatrená elastomérou opierkou, takže pri jej otlačení v extrémne namáhaných prevádzkach sa môžu porušené opierky jednoducho a rýchlo vymeniť.
- Vrchná a spodná časť sú navzájom samosvorné a nemôžu sa rozísť ani pri značnom uvolnení spojovacej skrutky, tiež nie je možné ustrihnutie alebo ohnutie skrutky.
- Pri rovnaní koľajnice je možné vrchnú časť svorky použiť ako klin pri natláčaní koľajnice do požadovaného smeru.
-
Nižšia cena jednotlivých prvkov - ekonomická výhodnosť oproti podobným systémom.
APLIKÁCIA NA OCEĽOVÝ ZÁKLAD

APLIKÁCIA NA BETÓNOVÝ ZÁKLAD
Systém tuhého aj pružného uloženia ZŤK je možné využiť aj pri upevňovaní žeriavových koľajníc na betónový základ. Použitím stranovo nastaviteľnej svorky a pružnej podložky dosiahneme rovnomerné rozloženie zvislých a vodorovných síl pôsobiacich na betónový podklad. Zároveň eliminuje rozrušovanie betónu v oblasti kotevných skrutiek. Pružná podložka je kontinuálne položená na oceľových podkladových doskách a vyrovnávacom betóne. Ako vyrovnávacia vrstva sa používa špeciálna zalievacia malta na báze rýchlotuhnúcich betónov. Oceľová podkladová doska sa navrhne v závislosti na tlaku žeriavových kolies , type koľajníc a stávajúcemu spôsobu uloženia kotevných skrutiek.
Oceľové podkladové dosky sa výškovo vyrovnajú do potrebnej roviny pomocou nastaviteľných matíc na kotevných skrutkách. Na takto vyrovnané a dotiahnuté podkladové dosky sa privaria spodné časti svorky ZŤK rovnakým spôsobom ako pri montáži na oceľový nosník. Medzera medzi podkladovou doskou a betónovým nosníkom sa podleje špeciálnou rýchlotvrdnúcou zalievacou maltou.

KVALITA OVERENÁ ČASOM
Svorky ZŤK sa vyrábajú už takmer dve desaťročia a používajú na celom území Slovenska a okolitých krajín . Sú inšpekčne certifikované a skúšané na dané použitie ,chránené užitkovým vzorom SR. Od ich vzniku došlo k niekoľkým technologickým a topologickým vylepšeniam s cieľom zrýchliť a zefektívniť montáž, zvýšiť únosnosť. Sú odlievané a ďalej strojovo obrábané výhradne na Slovensku. O ich kvalite a dobrých vlastnostiach jednoznačne svedčí fakt , že ich doteraz bolo vyrobených takmer stotisíc kusov a pritom sme nezaznamenali žiaden prípad ich únavového poškodenia alebo určitej disfunkcie.
Bližšiu špecifikáciu svoriek a ostatné údaje potrebné k montáži je možné dodať na požiadanie.
V prípade záujmu o dodávky svoriek alebo podrobnejšie informácie nás prosím kontaktujte viď. sekcia kontakt.
